Bilocale al piano terra con corte privata

Bilocale al piano terra con corte privata

In vendita
Santarcangelo di Romagna (San Martino dei Mulini)
179.000 €
Appartamento
Categoria
59,5
m2
1
Camere
1
Bagni
Descrizione
San Martino dei Mulini (Frazione di Santarcangelo di Romagna) in fase di realizzazione con consegna prevista in primavera 2026, appartamenti di varie metrature e tipologie. L'edificio composto da 7 unità abitative verrà ristrutturato volgendo particolare attenzione al risparmio energetico e comfort abitativo. Le caratteristiche costruttive sono di ultima generazione e consentono ai futuri acquirenti di poter personalizzare le varie unità immobiliari nelle finiture interne rispondendo così ad ogni esigenza di gusto personale.
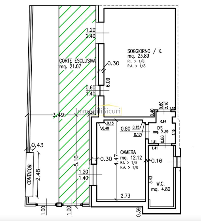
Tipologia 00: Ingresso indipendente su corte esclusiva, soggiorno angolo cottura, una camera un bagno.

Specifiche metrature:
# Appartamento mq 55,31
# Corte mq 21,07

Specifiche tecniche:
# Edificio “NO GAS”
# Riscaldamento a pavimento
# Pompa di calore
# Infissi in PVC
# Impianto fotovoltaico
# Cappotto termico di cm 14
# Predisposizione aria condizionata
# Classe energetica A1

Punti di forza:
# Distanza da Santarcangelo di R. 4,5 km
# Distanza da Rimini centro 7,5 Km
# Distanza da supermercati 100 metri
# Distanza da scuole primarie 500 metri
# Distanza da farmacia 150 metri

Riferimento CTD 02-00 € 179.000,00
La sua richiesta sarà gestita da Antonello.

Importante: le caratteristiche tecniche, disposizione interna e gli accessori indicati potrebbero in alcuni casi essere diverse dall'effettivo stato di fatto dell'immobile. A causa delle difformità dei dati pubblicati dai vari portali, ImmobiliSicuri, declina ogni responsabilità per eventuali involontarie incoerenze. Si precisa che le descrizioni sopra riportate non rappresentano alcun impegno contrattuale.







Caratteristiche principali
Codice:
CTD 02-00
Città:
Santarcangelo di Romagna (San Martino dei Mulini)
Categoria:
Appartamento
Locali:
2
Camere:
1
Bagni:
1
Mq:
59,5
Mq Giardino:
21,07
Piano:
Terra
Classe energetica:
A1
Stato Immobile:
In Costruzione
Posizione:
Periferia
Panorama:
Vista Giardino
Lati Liberi:
2
Giardino:
Privato
Arredi:
Non Arredato
Tipo Soggiorno:
Soggiorno
Tipo Cucina:
Angolo Cottura
Riscaldamento:
Autonomo
Tipo Riscaldam.:
Pompa di Calore
Tipo Impianto:
Pavimento
Fonte Energetica:
Elettrico
Acqua Calda:
Autonoma
Raffrescamento:
Predisposizione
Infissi:
PVC Doppio Vetro
Serramenti:
Nuovo
Persiana:
Tapparella PVC
Pavim. Giorno:
Ceramica
Pavim. Notte:
Ceramica
Pavim. Cucina:
Ceramica
Pavim. Bagno:
Ceramica
Isolamento:
Presente
Isolamento termico:
Cappotto esterno
Spessore cappotto (cm):
14
Destinato a residenti:
Si
Accessori
Cancello Elettrico
Doppi Vetri
Impianto Fotovoltaico
Porta Blindata
Video Citofono
Distanze
Posizione
Parco pubblico50 m
Istruzione
Scuola elementare500 m
Mezzi di trasporto
Stazione di servizio300 m
Altri servizi
Centro culturale250 m
Farmacia150 m
Supermercato100 m
Cookie preference